Thang máy hiện nay được xem là bộ phận, là cột sống không thể thiếu trong các tòa nhà lớn cao tầng, luôn tạo cảm giác nhẹ nhàng, thuận tiện cho sử dụng khi muốn đi lên hay đi xuống giữa các tầng. Vậy bạn có bao giờ thắc mắc cơ chế hoạt động thang máy gia đình như thế nào? cấu tạo làm sao?
Không còn xa lạ với chúng ta nửa, thang máy là sản phẩm mà đi bất kì đâu chúng ta đều có thể thấy được. Thang máy gia đình mang công dụng tương tự như những loại thang máy là di chuyển người hoặc đồ vật giữa các tầng của một tòa nhà.
Nhưng khác với những loại thang máy khác chúng bị giới hạn bởi trọng tải và hạn chế về số tầng, vì vậy nó còn được gọi là thang máy mini.
Ngoài mang giá trị sử dụng, giá trị kinh tế thì thang máy gia đình còn mang đến vẻ đẹp sang trọng, tinh tế cho không gian sống, hoặc tòa nhà, văn phòng, khách sạn,…. Bởi mang nhiều sự tiện lợi nên thang máy gia đình được sử dụng phổ biến trên thị trường.
Trước khi tìm hiểu cơ chế hoạt động của thang máy gia đình là như thế nào, thì chúng ta cùng điểm qua cấu tạo của thang máy gia đình như thế nào?, tại sao chúng lại hoạt động một cách thần kì như vậy?
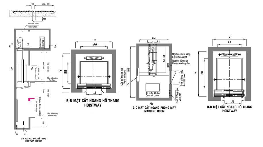
Nhìn chung một cái thang máy sẽ được cấu tạo từ rất nhiều bộ phận khác nhau và chúng được các kỹ sư tính toán để kết hợp với nhau một cách hoàn hảo nhất. Tổng quan chúng sẽ có những bộ phận sau:
Bộ phận này thông thường sẽ được lắp ở phía trên cùng của giếng thang trong phòng máy, 1 số trường hợp đặc biệt động cơ sẽ được lắp dưới hố thang. Motor kéo có tác kéo cáp làm di chuyển cabin lên xuống một cách nhịp nhàng và êm ái.
Động cơ và phần phanh được gắng đồng trục với nhau giúp cho quá trình dừng đúng vị trí tầng được nhịp nhàng hơn.
Là bộ phận chứa các linh kiện, thiết bị điện tử được lập trình sẵn có chức năng nhận và điểu mọi hoạt động của thang máy, đảm bảo thang máy hoạt động theo yêu cầu của người sử dụng một cách nhanh chóng và tiện lợi.
Thiết bị này giúp phát hiện quá tốc của cabin. Do cấu tạo thang máy có thể di chuyển quá nhanh hoặc quá chậm cho nên các nhà thiết kế đã đặc biệt xử lý tình huống này bằng bộ hạn chế tốc độ. Nó xuất hiện như là bộ phận đảm bảo tốc độ thang máy luôn trong mức an toàn.

Cấu tạo thang máy gia đình
Hay còn được gọi thắng cơ, do một nguyên nhân nào đó cabin vượt quá tốc độ cho phép, khi đó bộ phận chống vượt tốc sẽ gửi tín hiệu đến bộ hạn chế tốc độ.
Bộ hạn chế tốc độ sẽ bật cơ cấu khống chế bằng cách kẹp chặt cabin của thang máy vào đường ray, cắt điều khiển của motor làm giảm tốc độ cabin xuống ở mức an toàn.
Là vật dụng để nối cabin với đối trọng để truyền dẫn động lực của máy kéo đến cabin lẫn đối trọng.
Để cabin và đối trọng di chuyển đúng hướng, không bị lệch ra ngoài các kỹ sư đã thiết kế đường ray dẫn hướng thang máy, được lắp theo chiều thẳng đứng dọc giếng thang giúp cho thang máy di chuyển lên xuống thuận tiện hơn.
Là một khối nặng được treo bên đầu dây cáp còn lại, giúp tạo lực ma sát giữa rãnh cáp và cáp tải, ngoài ra còn có tác dụng cân bằng khối lượng cabin. Nhờ đó mà motor hoạt động nhẹ nhàng hơn.

Cấu tạo thang máy
Là thiết bị đảm nhận mở và đóng cửa tầng, động cơ chỉ mở cửa cabin khi dừng chính xác trước cửa tầng. Cửa cabin và cửa tầng được trang bị khóa liên động và các tiếp điểm để đảm bảo an toàn cho thang máy hoạt động.
Ngoài ra còn được tích hợp hệ chống kẹt cửa để đảm bảo an toàn trong trường hợp có vật cản khi cửa cabin hoặc cửa tầng đang đóng.
Cửa của thang máy được chia thành 2 loại là cửa cabin và cửa tầng, tuy khác nhau nhưng chức năng chung là bảo vệ người sử dụng an toàn bên trong cabin khi thang máy di chuyển.
Là một bộ phận quan trọng được thiết kế nằm dưới hố pit thang máy. Bộ phận này có nhiệm vụ làm giá đỡ cho cabin hoặc đối trọng khi chúng đi xuống quá giới hạn cho phép.
Bộ giảm chấn này sẽ hấp thụ chấn động mà cabin hoặc đối trọng đã tác dụng lên, để giảm hiện tượng rung lắc thang máy khi dừng ở tầng cuối cùng, giúp thang máy hoạt động nhịp nhàng và tự nhiên hơn.
Là không gian bên trong thang máy, nơi cho phép người sử dụng đứng bên trong và điều khiển thang máy theo ý muốn thông qua các nút bấm của bảng điều khiển.
Có thể vận tải được người và cả hàng hóa phụ thuộc vào tải trọng của loại thang máy đó. Bên trong cabin thang máy có thể được trang trí thêm hoa văn, gương hay màn hình điện tử,.., tùy thuộc vào nhu cầu của chủ đầu tư.

Cabin thang máy gia đình
Để giải thích một cách ngắn gọn và dễ hiểu nhất thì cơ chế hoạt động của thang máy gia đình như sau:
Khi bạn nhấn nút gọi tầng ở cửa thang máy, lúc này tín hiệu gọi tầng được gửi về hệ thống điều khiển thang máy.
Nhận được tín hiệu hệ thống điều khiển tiến hành xử lý thông tin và gửi tín hiệu đến hệ thống điều khiển động cơ.
Lúc này động cơ sẽ truyền lực kéo cabin thang máy di chuyển đến vị trí mà nhận tín hiệu từ bộ điều khiển, khi đến đúng vị trí chính xác thì thang máy dừng và mở cửa ra.
Lúc này người sử dụng bước vào cabin thang máy, khi không còn vật cản ở cửa thang máy tức người đã vào ca bin hết, thì bộ điều khiển cửa tầng sẽ đóng cửa lại.
Khách hàng sẽ nhấn nút gọi tầng, tín hiệu tiếp tục được truyền đến bộ điều khiển, phân tích xem tầng nào gần nhất, tầng nào xa nhất, xác định hành trình đi.
Sau đó tín hiệu sẽ được truyền đến bộ điều khiển động lực, điều khiển động cơ kéo cabin đến vị trí chính xác của từng tầng. Quá trình này sẽ được lặp đi lặp lại như vậy.

Cơ chế hoạt động của thang máy như thế nào
Nguồn Tổng Hợp